居然设计家 > 优秀作品 > 2D案例 > 中央原著赵女士方案设计

    中央原著赵女士方案设计

    0 | 0 |
    ***7
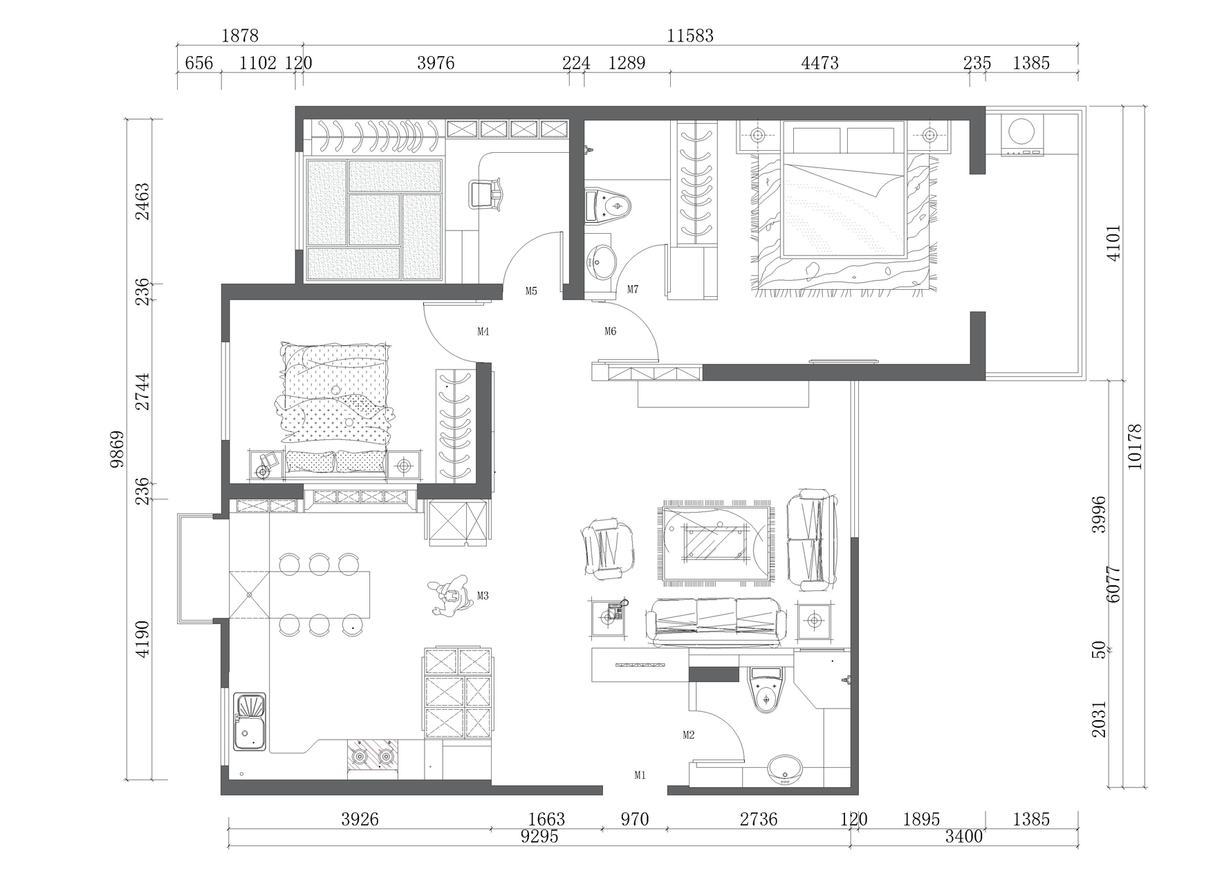
    • 户型:三室一厅一卫
    • 面积:100㎡
    • 风格:现代
    • 类型:住宅空间
    • 地址:山西省吕梁市离石区 中央原著1号楼2单元2501

    设计理念:项目名称:中央原著   建筑面积:130m2    装修风格:现代简约   主要材料:600*1200罗马利奥地砖,爱舍壁布,墙面浅色面板、乳胶漆、长颈鹿木地板。 本次设计我主要是采用了简洁明快的装饰手法,虽然空间有大有小但是总体的色调和设计风格是统一的。首先在功能方面,充分满足了客户的生活需求。 入户门以木质花格做隔断,给人视野宽阔。客厅区域的整体空间墙面以面板作为主色调,给人一种温馨舒适的感觉,明黄色是点缀色,是给人很温暖的色系,使室内空间形式和结构特点放大。在用咖灰色做墙面壁纸,给人一种很柔软舒适的空间,灰色给人平稳安静的感觉,让你感觉不到特别跳跃的动态空间。厨房设计为开放式,整体方案采用空间的开合设计手法,跟客厅达成整体统一的效果,使其在有限的空间中具有无限的遐想。地面运用斜铺的拼花设计,小六边形的点缀,给空间画龙点睛的效果。顶面大面积乳胶漆饰面,黑色乳胶漆修饰,灯光运用洗墙的方式,给空间增加了柔美感,和谐感!卧室地面铺贴运用木地板,主卧背景墙面板跟硬包相结合,保证功能上使用舒适地基础上体现个性。榻榻米房间设计在满足了孩子在空间的实用功能的同时,阶梯的的设计以及在灯具、壁纸、家具造型的选择上都充满了孩子的童趣。次卧的设计颜色明快,色彩感十足给人以温馨干练优雅又不失亲切的生活环境!

    现代风格三室一厅装修设计效果图
    其它
    现代风格其它装修设计效果图
    现代风格其它装修设计效果图
    现代风格其它装修设计效果图
    现代风格其它装修设计效果图
    现代风格其它装修设计效果图
    现代风格其它装修设计效果图
    现代风格其它装修设计效果图
    现代风格其它装修设计效果图
    现代风格其它装修设计效果图
    现代风格其它装修设计效果图
    现代风格其它装修设计效果图
    现代风格其它装修设计效果图
    现代风格其它装修设计效果图
    你可能喜欢
      • 全屋