居然设计家 > 优秀作品 > 2D案例 > 天津台北别墅

    天津台北别墅

    0 | 0 |
    设计师***胜
    ***胜
    • 设计经验:11年
    • 量房费:300元
    • 设计费:201-600元/m²
    • 擅长风格:欧式,中式,新古典,田园
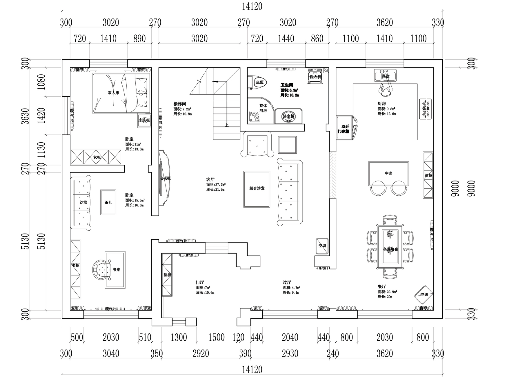
    • 户型:一室一厅一卫
    • 面积:100㎡
    • 风格:北欧
    • 类型:住宅空间
    • 地址:天津市市辖区西青区 天津市西青区台北别墅

    设计理念:本案二层独栋别墅,演绎了一种渡假休闲放松的生活方式,设计主题与灵感源于西班牙、地中海散发出的地中海生活的浪漫与自然情调。 在室内空间设计中,充分放大阳光海岸的浪漫气息。青城山脚下放慢生活节奏带来的简单快乐,闲适的生活方式,开敞平整的结构把生活空间刻意的模糊,把室内和室外亲密的结合。试图想创造一个平静没有约束,受欢迎的环境让都市人可以远离城市的喧哗,来到这里享受愉快的假期。 室内材质摒弃了浮华的石材,多采用手工刷漆及手工陶砖和木质,配以简单而纯朴的家具,铸铁的灯具、烛台,原木的柜子等,充满了质朴的美好气息,家具力求柔软舒适,给人一种舒适而别致的开园生活气息。

    北欧风格一室一厅装修设计效果图
    其它
    北欧风格其它装修设计效果图
    北欧风格其它装修设计效果图
    北欧风格其它装修设计效果图
    北欧风格其它装修设计效果图
    北欧风格其它装修设计效果图
    北欧风格其它装修设计效果图
    北欧风格其它装修设计效果图
    北欧风格其它装修设计效果图
    北欧风格其它装修设计效果图
    北欧风格其它装修设计效果图
    北欧风格其它装修设计效果图
    北欧风格其它装修设计效果图
    你可能喜欢
      • 全屋