居然设计家 > 优秀作品 > 2D案例 > 深圳华润城 唐小姐别墅

    深圳华润城 唐小姐别墅

    0 | 0 |
    ***4
    • 户型:一室一厅一卫
    • 面积:100㎡
    • 风格:中式
    • 类型:住宅空间
    • 地址:广东省深圳市南山区 深圳华润城

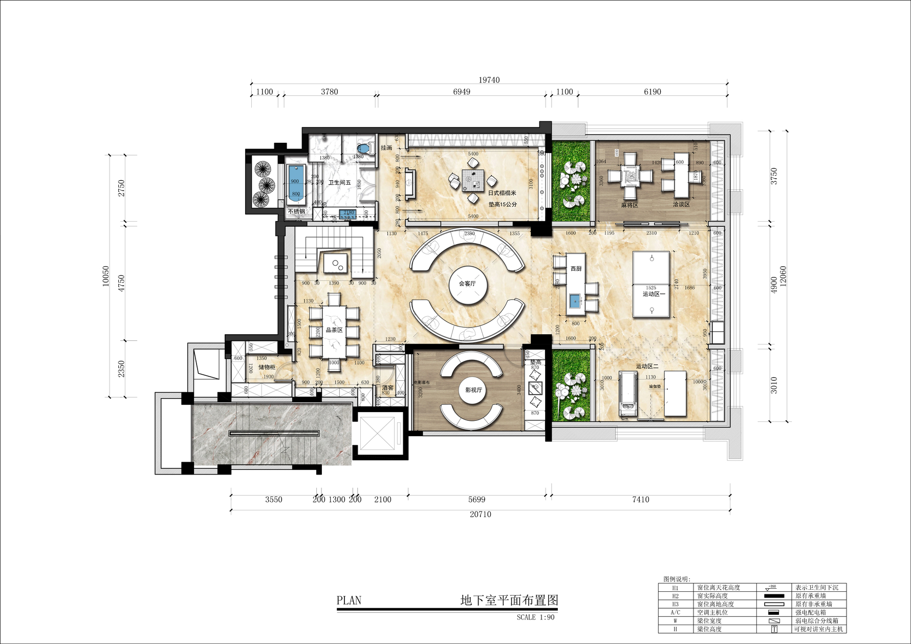
    设计理念:设计说明 主题:有灵魂的极简禅式设计 项目地址: 深圳华润城 建筑面积:500㎡ 设计风格:新中式 工程造价:300万元 设计时间:2017年 设计师:陈明武 主要材料:简一大理石瓷砖 、免漆板、科勒洁具 、玫瑰金不锈钢、索色木饰板、法国木纹灰大理石、 爵士白大理石、 设计理念: 有灵魂的极简设计,越品越有味 业主是一对年轻夫妇,从事时尚电商行业。女主人拥有许多名贵包包,男主人喜欢玩偶和潮牌收藏。两人生活上崇尚简单舒适,对于爱巢的构思独具品位。满怀对家的憧憬他们多次找寻期许的设计风格,却鲜有相中,直至发现设计师陈明武,双方审美诉求十分契合,于是便开启了一场愉悦的合作之旅。 本户型为三层小洋楼,横厅串联其主次关系,其它功能区域有序分布两端。通过强调空间的比例与布局,进退有度地诠释出现代生活主张。“设计需要回归生活,功能布局与家居细节应满足二人的实际需求。 设计师不断将灵感分解与重组,思考如何让这个家变得更温暖更随性,让简约舒适自然流淌在每一处空间。”如此解析其设计主旨。由玄关入室,便可直观感受空间开阔。偌大的落地窗尽揽四周美景,强调入户第一观感。设计师弱化区域结构与色彩,通过一组白色Flos吊灯恰到好处地将虚实关系勾勒出来。 玄关柜处原始空间结构是三折阶梯状,是玄关处的设计难点。延伸至顶面的哑光烤漆材质柜门内暗藏抽拉式柜体,完美整合原始空间结构,将储物功能隐藏在线条背后。女主人的包包便放置其中,兼顾实用与美学。 源于男主人喜爱收藏玩偶和潮牌,设计师定制整墙柜体作为收藏区。置物架上几抹清新色彩映衬出年轻气息,风格别致的Artemide折臂灯与Flos枪灯,刚柔并济,碰撞出混搭趣味。扭动开关,整墙藏品随之点亮,宛如男主人精神乐园的展厅。 本案从感官到心理都让人完整地体会空间气质所营造的美学品位。我相信纵然历经岁月沉淀,这个既纯粹又简约的空间仍能与业主夫妇进行自由而宁静的精神对话。”

    中式风格一室一厅装修设计效果图
    其它
    中式风格其它装修设计效果图
    中式风格其它装修设计效果图
    中式风格其它装修设计效果图
    中式风格其它装修设计效果图
    中式风格其它装修设计效果图
    中式风格其它装修设计效果图
    中式风格其它装修设计效果图
    中式风格其它装修设计效果图
    中式风格其它装修设计效果图
    中式风格其它装修设计效果图
    中式风格其它装修设计效果图
    中式风格其它装修设计效果图
    中式风格其它装修设计效果图
    中式风格其它装修设计效果图
    中式风格其它装修设计效果图
    中式风格其它装修设计效果图
    中式风格其它装修设计效果图
    你可能喜欢
      • 全屋