居然设计家 > 优秀作品 > 2D案例 > 白色经典欧式

    白色经典欧式

    0 | 0 |
    设计师***9
    ***9
    • 设计经验:9年
    • 量房费:300元
    • 设计费:61-120元/m²
    • 擅长风格:欧式,中式,现代,地中海
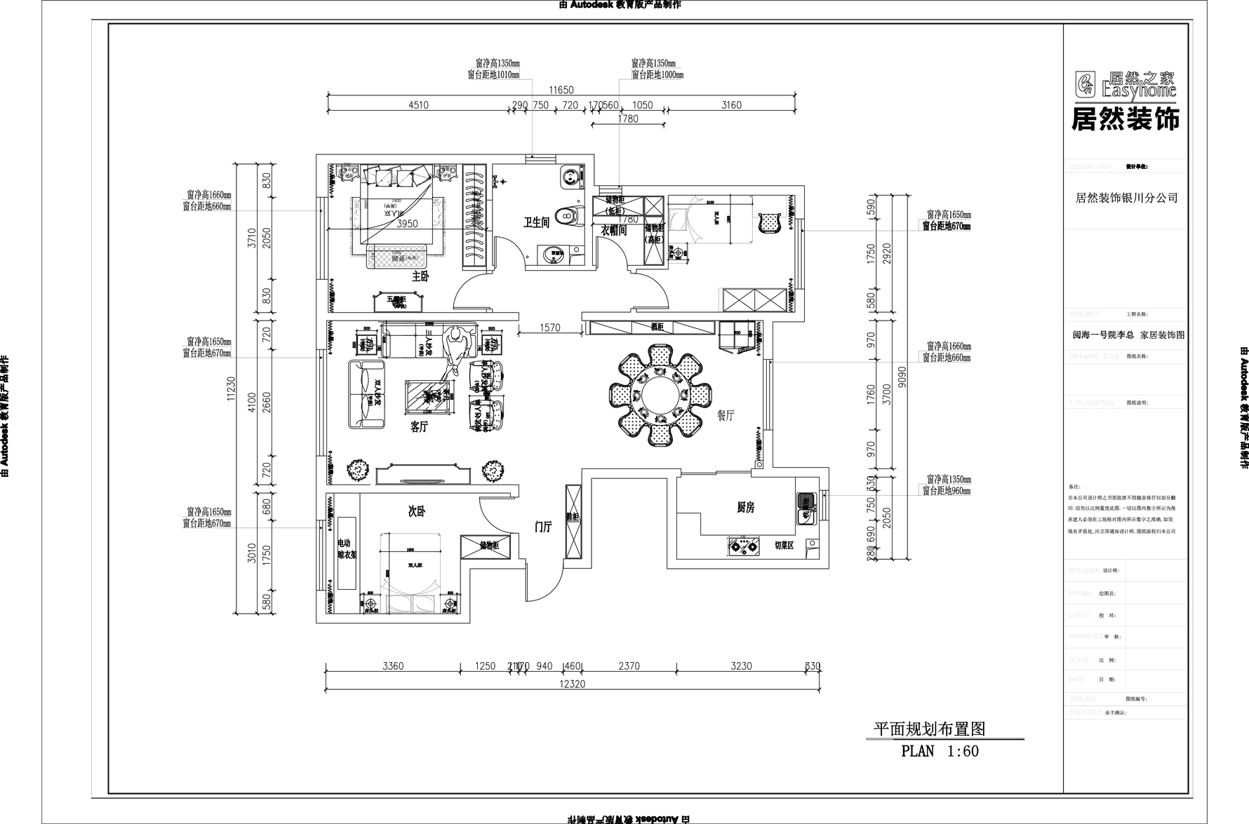
    • 户型:三室一厅一卫
    • 面积:100㎡
    • 风格:欧式
    • 类型:住宅空间
    • 地址:宁夏回族自治区银川市金凤区 阅海壹号院

    设计理念:本案总体户型比较归正,采用对称、呼应布局,过道圆形的流转过渡空间形成公共空间的活跃元素,极具特色。界面设计突出强调典雅大气的石材及实木护墙板的衬托,加之层次丰富的光影营造,充分展示奢华气度的优雅品质,用理性与睿智演绎着细腻婉约的空间表情和生活态度

    欧式风格三室一厅装修设计效果图
    其它
    欧式风格其它装修设计效果图
    欧式风格其它装修设计效果图
    欧式风格其它装修设计效果图
    欧式风格其它装修设计效果图
    欧式风格其它装修设计效果图
    欧式风格其它装修设计效果图
    欧式风格其它装修设计效果图
    欧式风格其它装修设计效果图
    你可能喜欢
      • 全屋