居然设计家 > 优秀作品 > 2D案例 > 伍仟岛现代简约

    伍仟岛现代简约

    0 | 0 |
    设计师***远
    ***远
    • 设计经验:18年
    • 量房费:500元
    • 设计费:400-800元/m²
    • 擅长风格:混搭、欧式、中式、美式、现代
    • 户型:一室一厅一卫
    • 面积:100㎡
    • 风格:现代
    • 类型:住宅空间
    • 地址:天津市市辖区西青区 天津市西青区伍仟岛

    设计理念:中海城市广场位于海河东路与大光明桥旁。临海河,自然环境优美,景观效果非常好。此案为5越6,通风采光好。业主在购买此房时开发商是按精装修五口之家规划的,我们在接手此房时开发商已经把墙体按他们的规划修改好,因此我们在接手后对房屋进行重新规划,对墙体进行拆改,将空间打通,满足客户大空间的需求。 业主为一对年轻夫妇,男主人从事金融行业,典型的知识分子,思想活跃,品位高雅,对传统文化有很深厚的理解。女主人的生活重心在家,喜欢烘焙,常有亲友来访与聚会活动。孩子在读中学,即将出国留学。同时业主在旁边还有一套常住房,因此我们设计是仅保留一间卧室,但是书房的榻榻米可以兼具休息的功能。通过空间结构的塑造来表现空间的视觉效果,更多的融入了建筑的设计手法和理念。简洁的硬装基础,使得后期的软装配饰留有更大的空间和设计张力。

    现代风格一室一厅装修设计效果图
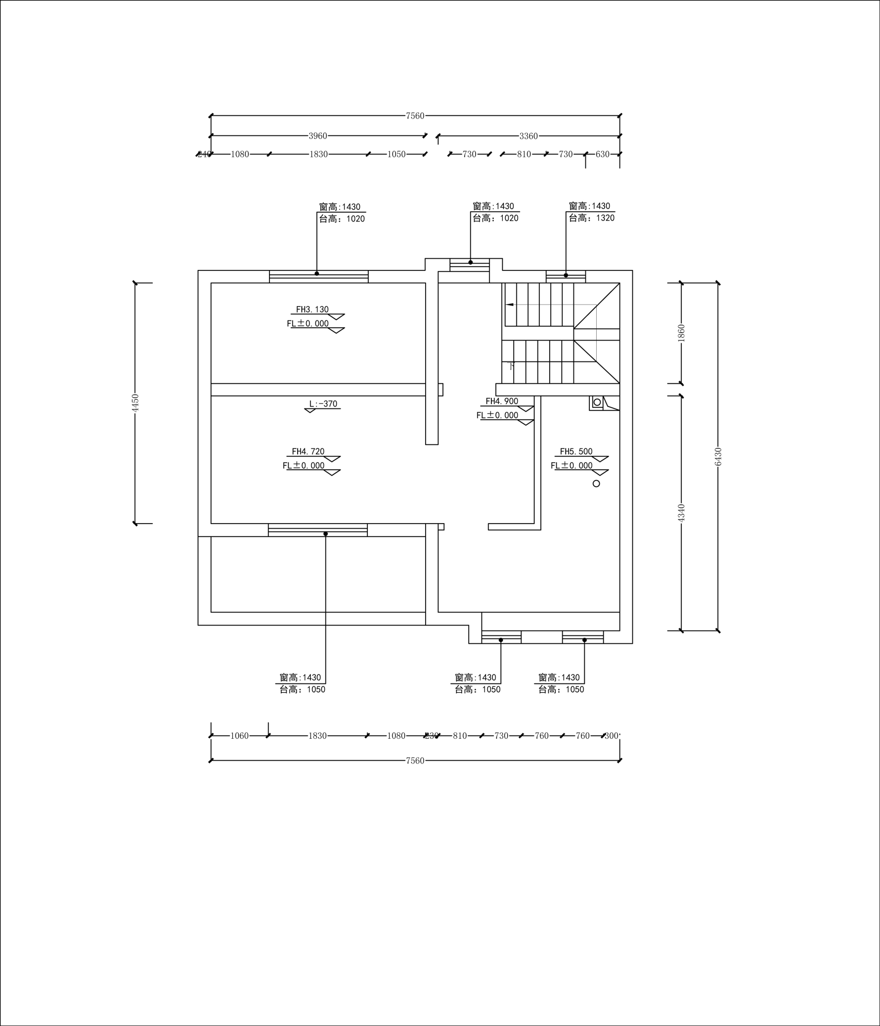
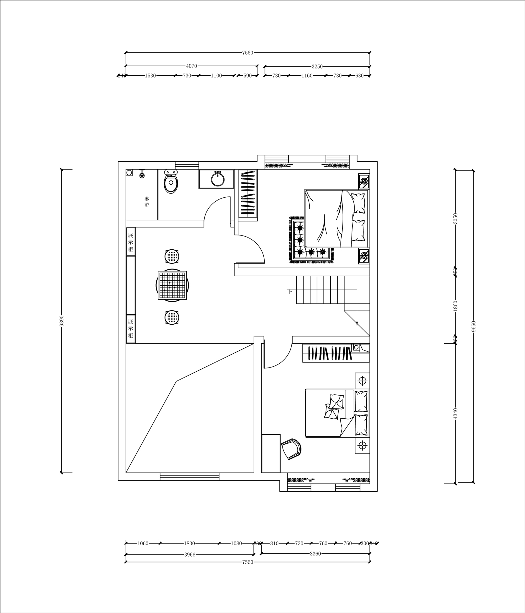
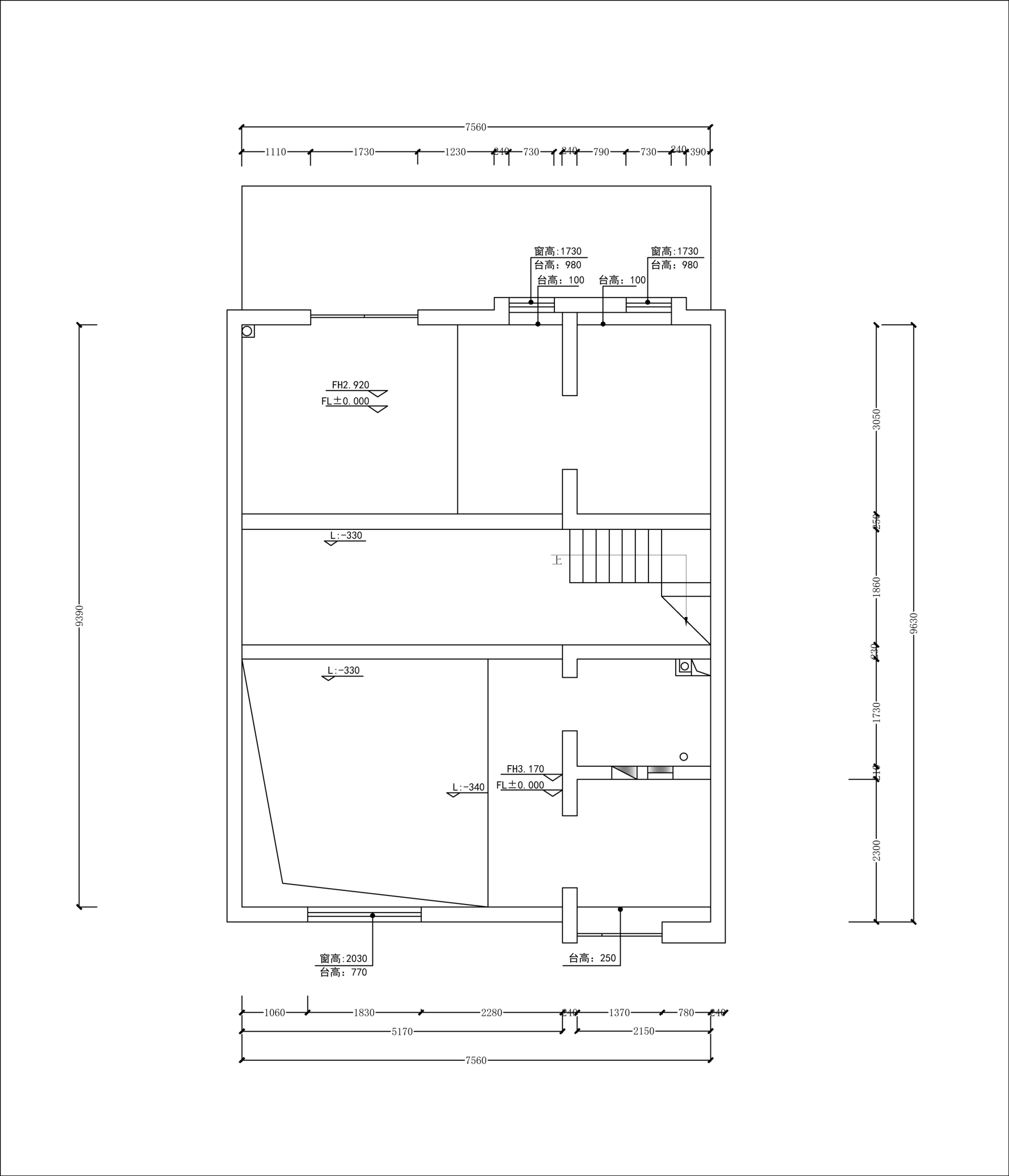
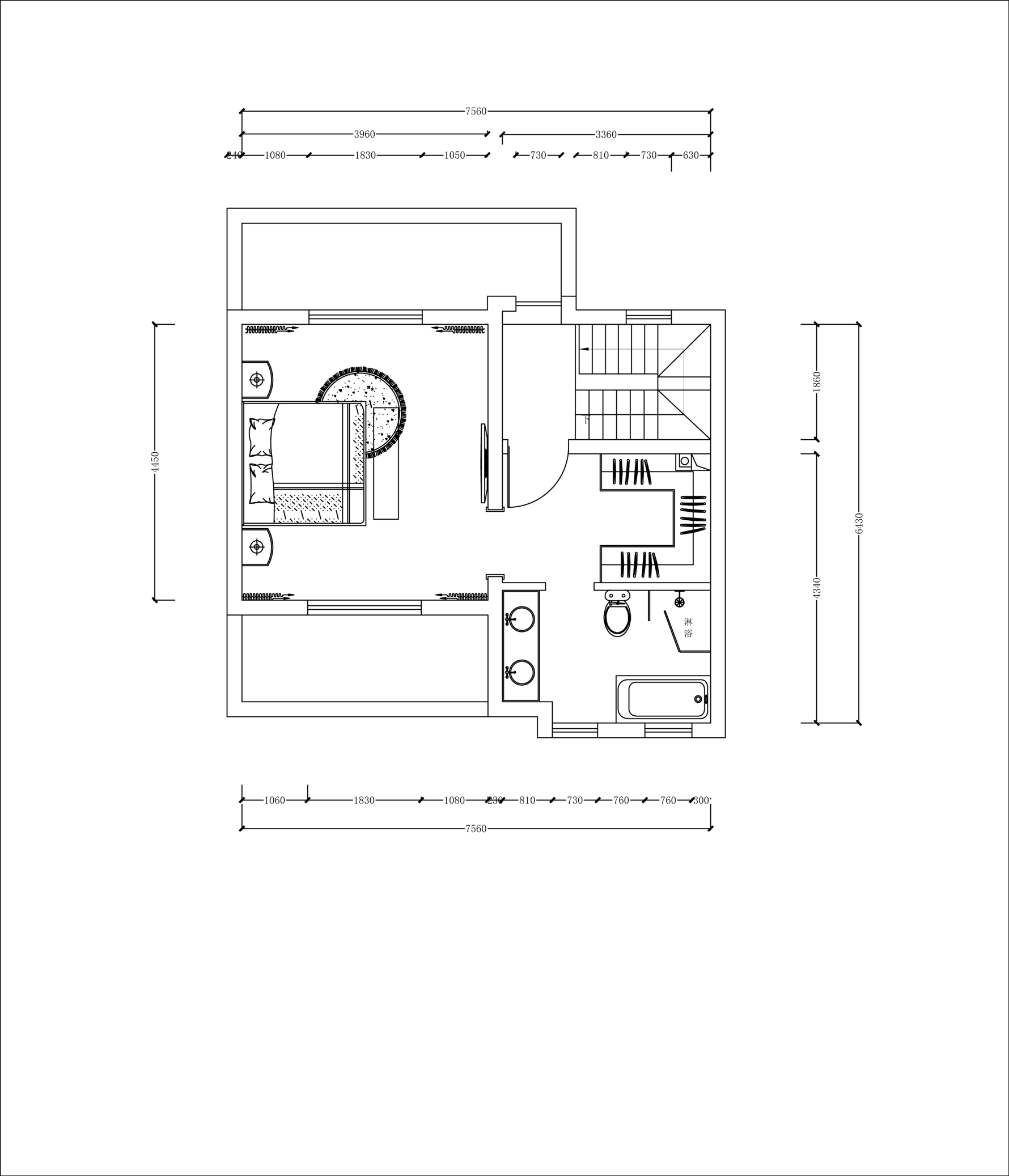
    其它
    现代风格其它装修设计效果图
    现代风格其它装修设计效果图
    现代风格其它装修设计效果图
    现代风格其它装修设计效果图
    现代风格其它装修设计效果图
    现代风格其它装修设计效果图
    现代风格其它装修设计效果图
    现代风格其它装修设计效果图
    现代风格其它装修设计效果图
    现代风格其它装修设计效果图
    现代风格其它装修设计效果图
    现代风格其它装修设计效果图
    现代风格其它装修设计效果图
    现代风格其它装修设计效果图
    现代风格其它装修设计效果图
    现代风格其它装修设计效果图
    你可能喜欢
      • 全屋