居然设计家 > 优秀作品 > 2D案例 > 天上的星星参北斗

    天上的星星参北斗

    0 | 0 |
    ***9
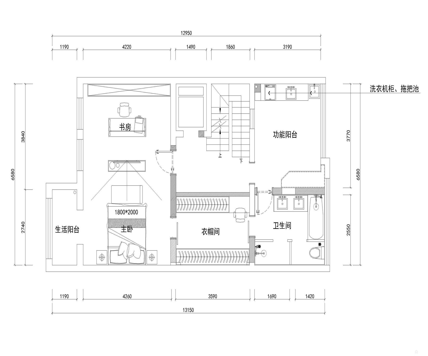
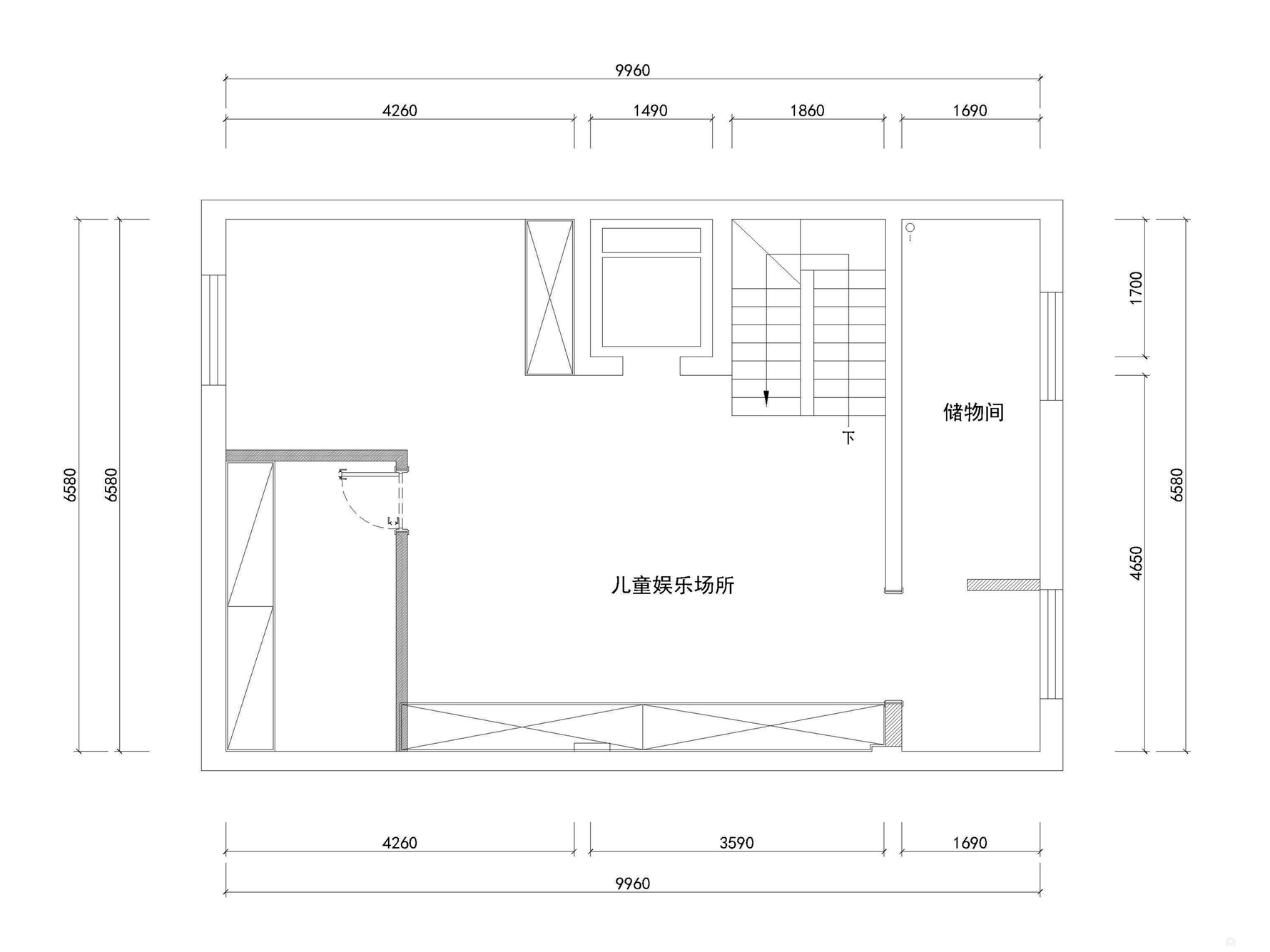
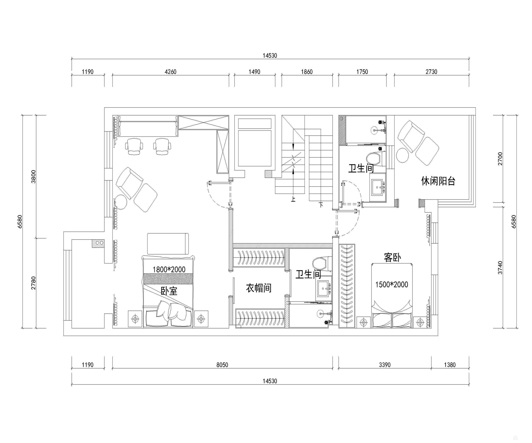
    • 户型:三室一厅一卫
    • 面积:100㎡
    • 风格:欧式
    • 类型:住宅空间
    • 地址:贵州省贵阳市花溪区 贵阳市花溪区

    设计理念:其实欧式风格包含广泛,主要有法式风格,意大利风格,西班牙风格,英式风格,地中海风格,北欧风格等几大流派。其中最具特色的建筑风格为巴洛克风格和洛可可风格。这种风格最终诠释在建筑的外观设计和室内设计上。欧式风格是世界上比较出名的一种建筑风格,和中式风格一样,任何建筑文化,都是经历过历史和岁月的的沉淀形成。欧式新古典装修风格,同样适合运用于各行各业,酒店行业也不例外,只是我们在国内不是很常见,那么一所欧式风格酒店设计需要注重那些灵魂设计呢?

    欧式风格三室一厅装修设计效果图
    其它
    欧式风格其它装修设计效果图
    欧式风格其它装修设计效果图
    欧式风格其它装修设计效果图
    欧式风格其它装修设计效果图
    欧式风格其它装修设计效果图
    欧式风格其它装修设计效果图
    欧式风格其它装修设计效果图
    欧式风格其它装修设计效果图
    你可能喜欢
      • 全屋