清净情景

    0 | 0 |
    ***9
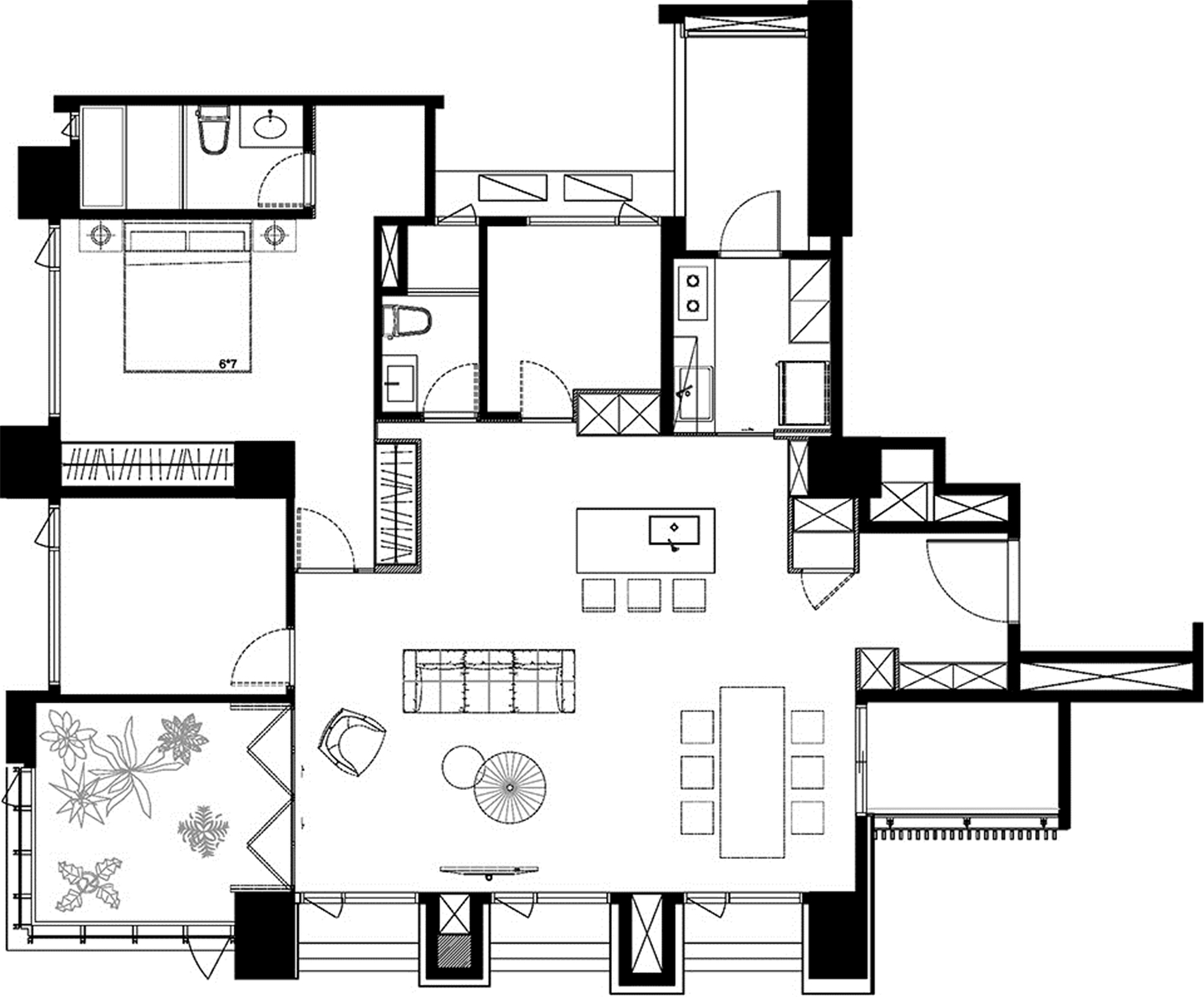
    • 户型:一室一厅一卫
    • 面积:100㎡
    • 风格:现代
    • 类型:住宅空间
    • 地址:重庆市市辖区江北区 重庆市九龙坡区万科西城公园里

    设计理念:同时喜欢两种不同装修风格的朋友,通常会将两种装修风格中,自己喜爱的装修元素进行采纳,从而混搭出自己的独特空间。

    现代风格一室一厅装修设计效果图
    其它
    现代风格其它装修设计效果图
    现代风格其它装修设计效果图
    现代风格其它装修设计效果图
    现代风格其它装修设计效果图
    现代风格其它装修设计效果图
    现代风格其它装修设计效果图
    现代风格其它装修设计效果图
    现代风格其它装修设计效果图
    现代风格其它装修设计效果图
    你可能喜欢
      • 全屋